por el momento no esta disponible

Apartamento amueblado muy bonito en Schwabing-West

Mildred-Scheel-Bogen
80804 München
ID 11349

3 habitaciones
aprox. 101 m²
Piso 2
Disponible desde
inmediato por 6-24 meses
Alquiler mínimo
6 meses
Número de personas
apto para 2 personas
Tarifa de servicio
Ninguna
Limitaciones
sólo a no fumadores, no se admiten mascotas

Recorrido en vídeo

Visite fácilmente
desde cualquier lugar y vea cómodamente su nuevo hogar.

Vídeo
Este piso fue fotografiado e inspeccionado personalmente por nosotros.

Beautiful apartment in a quiet location with high-quality furniture and equipment. Spacious living area with fireplace and roof terrace. Modern bathroom with bathtub and shower, second bathroom with shower. High-end kitchen, fully equipped.

Equipo

internet
televisión
aspiradora
lavadora
Secadora de ropa
lavavajillas
Toallas
Ropa de cama
Secador de pelo
Plancha
sótano
garaje
ascensor
balcón
terraza

Información

Piso
2° - con ascensor
Año de construcción
2011
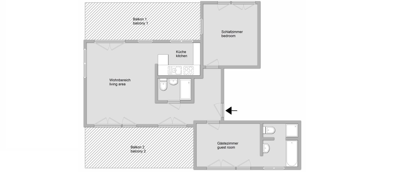
habitaciones
salón-comedor con conjunto de sillones, sofá y muebles de comedor
Dormitorio con cama de matrimonio (200 x 200 cm)
Habitación de invitados con sofacama
2 baños
cuarto de baño con ducha y bañera
cuarto de baño con ducha
Suelo
parquet, baldosa de gres porcelánico
mobiliario
alta calidad, meubles diseñados
Cocina
cocina abierta al salón y separada por una barra, horno de cerámica, horno eléctrico, extracción, cafetera con cápsulas , lavavajillas, congelador y nevera combinado, taburete de bar, completa con platos
Equipamiento detallado
Lavadora propia en el sótano
Propia secadora en el sótano
Dos televisores de pantalla plana
incluído ropa de cama y toallas
incluído plancha, tabla de planchar y aspiradora
Internet
WiFi
internet-tarifa plana (con hasta 50 Mbit/s)
gastos incluidos en la renta mensual
especiales
Balcón
Azotea
Sótano
estacionamiento
Garaje subterráneo (plaza individual) - más información: Aparcamiento en Múnich
gastos incluido en la renta mensual
Información sobre la renta mensual
Incluido: gastos adicionales, gastos de electricidad hasta el importe de 120,- € /mes, Gastos de calefacción y agua caliente hasta un importe de 200,- €/mes, Internet, garaje subterráneo (plaza individual)
Depósito
2 meses de alquiler
Licencia para los servicios públicos de radio y televisión
Tasa de derechos de radiodifusión para poder hacer uso de los servicios públicos de radio y televisión. Actualmente, la tarifa mensual es de 18,36 €/mes y, a menos que se indique lo contrario, no está incluida en el importe total del alquiler. Por consiguiente, esta tasa corre a cargo del arrendatario, quien deberá abonarla directamente a ARD ZDF Deutschlandradio Beitragsservice (Servicio de derechos de radiodifusión). más información
certificado energético
Año de construcción: 2011
Tipo del Certificado de Eficiencia Energética: Certificado de consumo
Fuentes de energía principales: sistema de calefacción a distancia
Categoría de eficacia energética: C
Valor del consumo de energía: 93,00 kWh/(m²*a)
Marlies Niggl

Marlies Niggl

Atención al cliente

¿Aún no has encontrado el piso adecuado?

Nuestro equipo de alquiler estará encantado de ayudarle en su búsqueda. Solo tiene que llamarnos al +49 89 3408 230 o rellenar nuestro formulario de búsqueda. Nos pondremos en contacto con usted lo antes posible. Por cierto, también ofrecemos citas los sábados.

Realizar una búsqueda

descripción de la situación

Mildred-Scheel-Bogen

München Schwabing-West

  • buena zona
  • cerca del Luitpoldpark
  • muy tranquilo
  • aprox. 3,9 km norte centro de Munich
Más información sobre los alrededores
metro
Líneas U2, U3 y U8, Estación Scheidplatz (15 minutos a pie)
tranvía
Línea 23, Estación Parzivalplatz (10 minutos a pie)
autobús
Línea 142, Estación Kloppstockstraße (3 minutos a pie)
Líneas 140, 141 y N40, Estación Wilhelm-Hertz-Straße (8 minutos a pie)

Apartamentos similares

ático con terraza de 3 habitaciones | Múnich-Schwabing-West | 14731
Vídeo
inmediato por 6-36 meses
3 habitaciones
110 m²
Múnich-Schwabing-West
4,250
€/mes
apartamento de 3 habitaciones | Múnich-Obersendling | 11291
Vídeo
inmediato por 6-36 meses
3 habitaciones
72 m²
Múnich-Obersendling
2,500
€/mes
apartamento de 3 habitaciones | Múnich-Parkstadt Schwabing | 9790
Vídeo
01.04.2026 por 6-36 meses
3 habitaciones
87 m²
Múnich-Parkstadt Schwabing
2,700
€/mes
apartamento de 3 habitaciones | Múnich-Neuhausen | 9058
Vídeo
inmediato por 6-12 meses
3 habitaciones
85 m²
Múnich-Neuhausen
3,500
€/mes
apartamento de 3 habitaciones | Múnich-Obersendling | 13397
Apartamento con servicios
inmediato por 1-5 meses
3 habitaciones
53 m²
Múnich-Obersendling
3,660
€/mes

Preguntas frecuentes

Nuestro servicio es gratuito para usted como inquilino. Tras firmar el contrato, pagas el alquiler mensual y una fianza única (normalmente dos meses de alquiler) al propietario.

Si ha encontrado una oferta adecuada en nuestro sitio web o desea recibir ofertas adecuadas de nosotros, rellene primero nuestro formulario de registro en su totalidad. Nuestros asesores se pondrán en contacto con usted lo antes posible para hablar sobre los pasos a seguir. Estaremos encantados de organizar una cita para ver la vivienda in situ. Una vez que se haya decidido por un piso, hablaremos con el propietario y redactaremos el contrato de alquiler una vez que haya sido aceptado.

El periodo de alquiler especificado es vinculante. Si un piso se ofrece para el 1 de junio, por ejemplo, no podrá alquilarse antes, y normalmente tampoco mucho después. Si el periodo de alquiler que desea difiere de la oferta, comuníqueselo a su asesor. Si se especifica una fecha de finalización fija, el piso no podrá prorrogarse. Si se especifica un periodo de alquiler variable, se pueden negociar ligeras desviaciones con el propietario si es necesario.

Los proveedores privados de pisos y casas en Múnich están sujetos a un periodo mínimo de alquiler de seis meses. La ciudad de Múnich considera que los alquileres inferiores a seis meses constituyen apropiación indebida de la vivienda, por lo que los pisos y las casas sólo se alquilan a través de nosotros por un mínimo de seis meses o más. Por otro lado, los proveedores comerciales, como los de apartamentos con servicios, no están autorizados a alquilar por más de seis meses en muchas localidades. Por lo tanto, diferenciamos entre ofertas para estancias cortas y largas. En la región de Tegernsee, los proveedores privados también están autorizados a alquilar por periodos más cortos, lo que significa que podemos ofrecer alquileres amueblados a partir de un mes.

Si desea una visita personal in situ, háganoslo saber. Si el piso sigue alquilado, nuestros asesores concertarán la cita con el inquilino actual. Si el piso ya está libre, normalmente se pueden concertar citas con poca antelación. Tenga en cuenta que el piso suele alquilarse a la persona que primero se compromete. Por lo tanto, no planifique sus citas demasiado tarde, ya que de lo contrario el inmueble deseado podría haberse alquilado entretanto.

Si lo desea, puede ver nuestras propiedades virtualmente mediante videollamada. En nuestro sitio web encontrará fotos y vídeos de alta calidad de la propiedad, la zona circundante e información detallada adicional sobre cada propiedad.

El contrato de alquiler se celebra entre el inquilino y el propietario. En la mayoría de los casos, Mr. Lodge redacta el contrato de alquiler -previa consulta con el inquilino y el propietario- y lo envía a ambas partes para su firma.

Según lo acordado en el contrato de alquiler, el piso debe ser devuelto limpio por un profesional. Cuando el inquilino se muda, se realiza una limpieza final comercial, que el propietario encarga a una empresa especializada. Los costes se calculan en función del tiempo y los materiales y suelen correr a cargo del inquilino. El propietario recibe la factura de la empresa de limpieza y compensa los costes con la fianza. Una limpieza previa a fondo puede reducir el coste de la limpieza comercial. Consulte nuestra lista de comprobación para saber qué incluye una limpieza final.

Cookie notice
This website uses cookies to personalize content, customize and measure advertising, and provide a safe experience. By clicking the "Allow all and continue" button, you consent to the collection of data via cookies.
Por favor, active las cookies en la configuración de su navegador.