Apartamento lujoso amueblado en Au-Haidhausen
This light-flooded 1-room apartment has been stylishly furnished and is fully equipped. One of the many highlights is definitely the own small terrace in front of the apartment, with a view of the pretty garden area, as well as the daylight bathroom in elegant high-quality natural stone design. The windows are equipped with external sun blinds. Also very convenient: A packing station for the tenants is installed in the hallway next to the mailboxes - this makes it super easy to deliver packages to the tenants at any time.
This exclusive residential complex was completed in 2021. The residential quarter was created by converting a historic building ensemble with a striking history: It was the hunting lodge of Duke Wilhelm IV, a monastery of the Paulaner monks, a military hospital and even an old Munich prison. In the middle of the traditional neighborhood of Nockherberg with the creek Auer Mühlbach, Mariahilfplatz, Auer Dult and the banks of the river Isar, you can get the real Munich experience here.
An outdoor parking space can be rented upon request through the landlord (parking space at Maria-Hilf-Platz approx. 55,- EUR/month).
Equipo
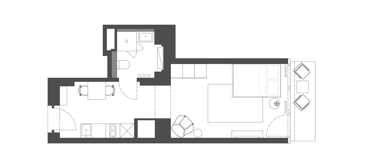
cama tipo francés (140 x 200 cm), sillón, armario, aparador
Cuarto de baño con ducha
Pantalla plana
incluído ropa de cama y toallas
incluído plancha, tabla de planchar y aspiradora
internet-tarifa plana
gastos incluidos en la renta mensual
Terraza pequeña
Vista al jardín interior
Sótano
Transporte público
Alrededores
München Au
Compras:
farmacia, tienda ecológica, supermercados, mercado semanal, panadería, droguería, tienda de bebidas , carnicería, frutería
comida y bebida:
bares, jardines de cerveza, cafeterías, pubs, restaurantes, cafés de pie
