por el momento no esta disponible

Dúplex amueblado lindo en Waldperlach

Rudolf-Gütlein-Weg
81739 München
ID 13502
€ 2.500,-
incl.: gastos adicionales, electricidad, Gastos de calefacción y agua caliente, agua, Internet, garaje

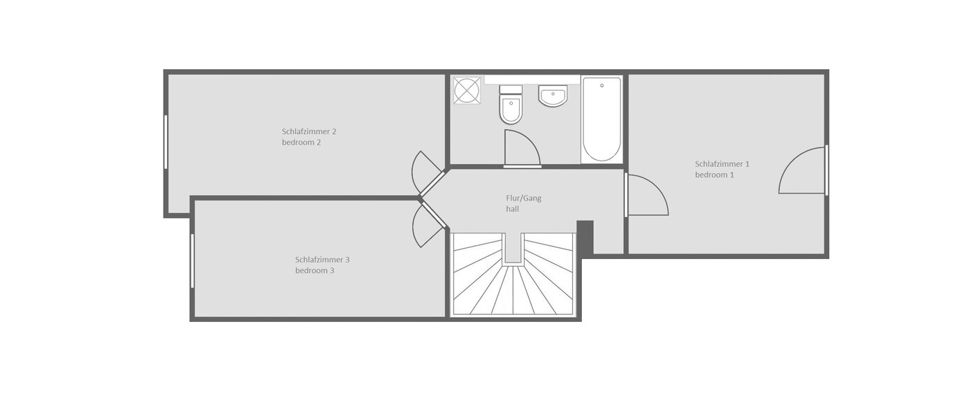
4 habitaciones
aprox. 141 m²
Disponible desde
inmediato por 6-36 meses
Alquiler mínimo
6 meses
Número de personas
apto para 3 personas
Tarifa de servicio
Ninguna
Limitaciones
sólo a no fumadores, Período de alquiler preferido es de al menos 12 meses, no se admiten mascotas

Recorrido en vídeo

Visite fácilmente
desde cualquier lugar y vea cómodamente su nuevo hogar.

Vídeo

Bright, well-maintained 4-room maisonette apartment with south-facing terrace and garden in quiet, pedestrian-friendly residential area of Waldperlach with lots of green spaces and little traffic (traffic-calmed zone).

Equipo

internet
televisión
aspiradora
lavadora
Secadora de ropa
lavavajillas
Toallas
Ropa de cama
Secador de pelo
Plancha
sótano
garaje
ascensor
balcón
terraza

Información

Año de construcción
1998
habitaciones
salón-comedor con conjunto de sillones, sofá y muebles de comedor
Primer dormitorio con cama de matrimonio
segundo dormitorio con cama individual
tercer dormitorio con sofacama
Cuarto adicional
Cuarto de baño con bañera
servicio de invitados
Suelo
parquet, suelo de baldosa, suelo laminado
mobiliario
5-10 años, amueblada con gusto y colores claros
Cocina
muebles de cocina integrados, con ventana, congelador y nevera combinado, lavavajillas, horno de cerámica, horno eléctrico, extracción, microondas, tostadora de pan, hervidor de agua, mesa con 3 sillas, completa con platos
Equipamiento detallado
Lavadora en el piso
Secadora en el piso
Pantalla plana
Lector DVD
incluído ropa de cama y toallas
incluído plancha, tabla de planchar y aspiradora
Internet
WiFi
internet-tarifa plana (con hasta 16 Mbit/s)
gastos incluidos en la renta mensual
especiales
Terraza al sur
Vistas al jardín
Jardín pequeño
estacionamiento
Garaje subterráneo de 2 pisos - más información
Gastos incluidos en el alquiler
Información sobre la renta mensual
Incluido: gastos adicionales, electricidad, Gastos de calefacción y agua caliente, agua, Internet, garaje subterráneo (duplex)
Depósito
2 meses de alquiler
Licencia para los servicios públicos de radio y televisión
Tasa de derechos de radiodifusión para poder hacer uso de los servicios públicos de radio y televisión. Actualmente, la tarifa mensual es de 18,36 €/mes y, a menos que se indique lo contrario, no está incluida en el importe total del alquiler. Por consiguiente, esta tasa corre a cargo del arrendatario, quien deberá abonarla directamente a ARD ZDF Deutschlandradio Beitragsservice (Servicio de derechos de radiodifusión). más información
certificado energético
Año de construcción: 1998
Tipo del Certificado de Eficiencia Energética: Certificado de consumo
Fuentes de energía principales: gas
Categoría de eficacia energética: C
Valor del consumo de energía: 80,00 kWh/(m²*a)
Giulia Fabiani

Giulia Fabiani

Atención al cliente (Senior)

¿Aún no has encontrado el piso adecuado?

Nuestro equipo de alquiler estará encantado de ayudarle en su búsqueda. Solo tiene que rellenar nuestro formulario de búsqueda y nos pondremos en contacto con usted lo antes posible.

Realizar una búsqueda

descripción de la situación

Rudolf-Gütlein-Weg

München Waldperlach

  • buena zona
  • muy tranquilo
  • aprox. 8,7 km sureste centro de Munich
Más información sobre los alrededores
metro
Línea U5, Estación Neuperlach Süd (15 minutos a pie)
tren urbano
Línea S7, Estación Neubiberg (12 minutos a pie)
autobús
Línea 198, Estación Klara-Ziegler-Bogen (4 minutos a pie)

Apartamentos similares

apartamento de 2 habitaciones | Múnich-Ramersdorf | 13451
Vídeo
01.04.2026 por 6-48 meses
2 habitaciones
55 m²
Múnich-Ramersdorf
2,100
€/mes
apartamento de 2 habitaciones | Múnich-Perlach | 10541
Vídeo
inmediato por 6-24 meses
2 habitaciones
57 m²
Múnich-Perlach
1,690
€/mes
apartamento de 3 habitaciones | Múnich-Neuperlach | 4521
Vídeo
23.05.2026 por 6-24 meses
3 habitaciones
78 m²
Múnich-Neuperlach
2,480
€/mes
apartamento de 2 habitaciones | Múnich-Neuperlach | 8365
Vídeo
06.03.2026 por 6-24 meses
2 habitaciones
45 m²
Múnich-Neuperlach
1,600
€/mes
apartamento de 1 habitación | Múnich-Altperlach | 10528
Vídeo
inmediato por 6-48 meses
1 habitación
32 m²
Múnich-Altperlach
1,290
€/mes

Preguntas frecuentes

Nuestro servicio es gratuito para usted como inquilino. Tras firmar el contrato, pagas el alquiler mensual y una fianza única (normalmente dos meses de alquiler) al propietario.

Si ha encontrado una oferta adecuada en nuestro sitio web o desea recibir ofertas adecuadas de nosotros, rellene primero nuestro formulario de registro en su totalidad. Nuestros asesores se pondrán en contacto con usted lo antes posible para hablar sobre los pasos a seguir. Estaremos encantados de organizar una cita para ver la vivienda in situ. Una vez que se haya decidido por un piso, hablaremos con el propietario y redactaremos el contrato de alquiler una vez que haya sido aceptado.

El periodo de alquiler especificado es vinculante. Si un piso se ofrece para el 1 de junio, por ejemplo, no podrá alquilarse antes, y normalmente tampoco mucho después. Si el periodo de alquiler que desea difiere de la oferta, comuníqueselo a su asesor. Si se especifica una fecha de finalización fija, el piso no podrá prorrogarse. Si se especifica un periodo de alquiler variable, se pueden negociar ligeras desviaciones con el propietario si es necesario.

Los proveedores privados de pisos y casas en Múnich están sujetos a un periodo mínimo de alquiler de seis meses. La ciudad de Múnich considera que los alquileres inferiores a seis meses son un uso indebido de la vivienda, por lo que sólo intermediamos en pisos y casas por un periodo mínimo de seis meses o superior.<br />Por otro lado, los proveedores comerciales, como los pisos con servicios, no están autorizados a alquilar por más de seis meses en muchas localidades. En la región de Tegernsee, los proveedores privados también están autorizados a alquilar por períodos más cortos y, por lo tanto, podemos ofrecer alquileres amueblados a partir de un mes.

Si desea una visita personal in situ, háganoslo saber. Si el piso sigue alquilado, nuestros asesores concertarán la cita con el inquilino actual. Si el piso ya está libre, normalmente se pueden concertar citas con poca antelación. Tenga en cuenta que el piso suele alquilarse a la persona que primero se compromete. Por lo tanto, no planifique sus citas demasiado tarde, ya que de lo contrario el inmueble deseado podría haberse alquilado entretanto.

Si lo desea, puede ver nuestras propiedades virtualmente mediante videollamada. En nuestro sitio web encontrará fotos y vídeos de alta calidad de la propiedad, la zona circundante e información detallada adicional sobre cada propiedad.

El contrato de alquiler se celebra entre el inquilino y el propietario. En la mayoría de los casos, Mr. Lodge redacta el contrato de alquiler -previa consulta con el inquilino y el propietario- y lo envía a ambas partes para su firma.

Según lo acordado en el contrato de alquiler, el piso debe ser devuelto limpio por un profesional. Cuando el inquilino se muda, se realiza una limpieza final comercial, que el propietario encarga a una empresa especializada. Los costes se calculan en función del tiempo y los materiales y suelen correr a cargo del inquilino. El propietario recibe la factura de la empresa de limpieza y compensa los costes con la fianza. Una limpieza previa a fondo puede reducir el coste de la limpieza comercial. Consulte nuestra lista de comprobación para saber qué incluye una limpieza final.

Cookie notice
This website uses cookies to personalize content, customize and measure advertising, and provide a safe experience. By clicking the "Allow all and continue" button, you consent to the collection of data via cookies.
Por favor, active las cookies en la configuración de su navegador.