Casa adosada luminosa con jardín soleado
Estamos orgullosos de presentar esta hermosa casa adosada, situada en una parcela soleada de aprox. 300 m2 al final de un camino privado en una zona muy tranquila. Las habitaciones principales están orientadas al sur y al este y "viven" de la estrecha conexión con el jardín y la maravillosa vista de la vegetación.
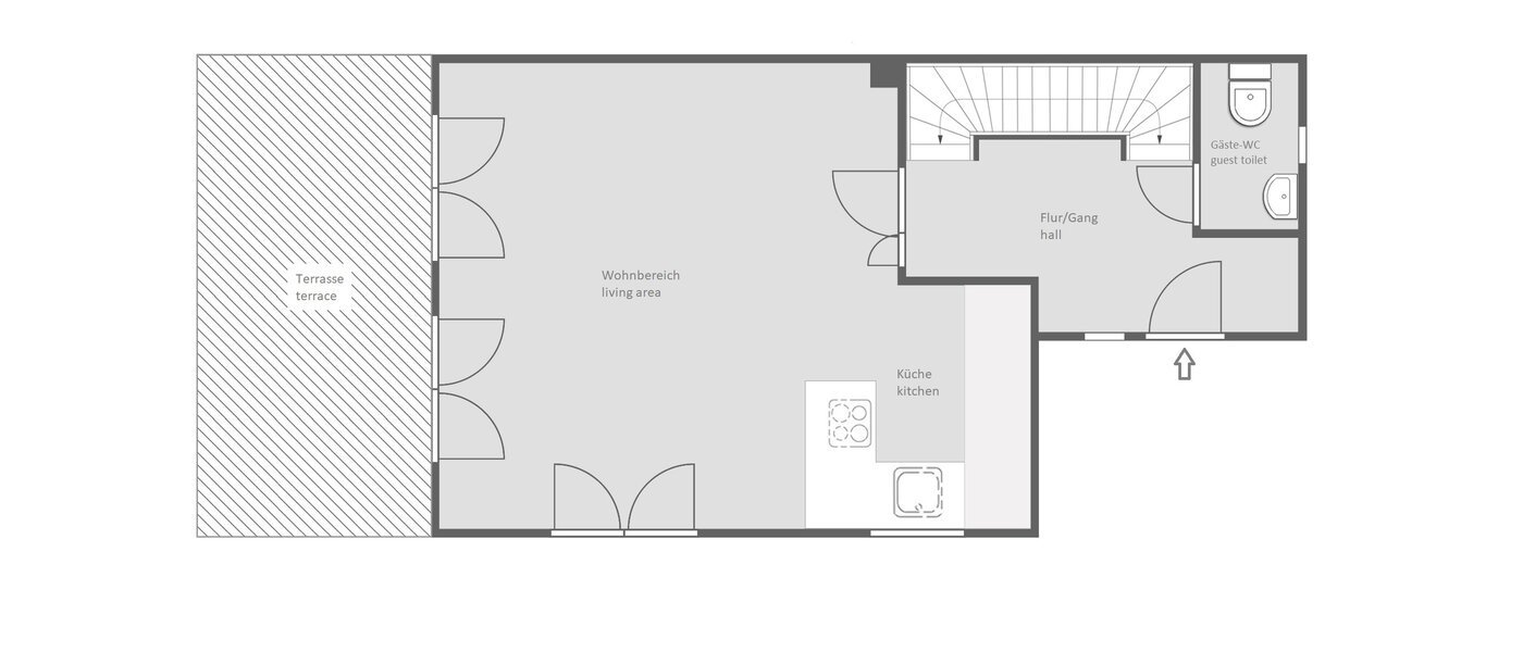
La espaciosa planta impresiona por la disposición lineal y luminosa de los espacios habitables. En la planta baja, de unos 40 m2, hay un luminoso salón-comedor con cocina abierta y acogedora chimenea. Los amplios ventanales permiten una vista despejada del jardín, de gran belleza. La cocina de alta calidad con encimera de cerámica está totalmente equipada con todos los electrodomésticos y se instaló recientemente en octubre de 2023. La amplia zona de entrada con la escalera separada del salón está bien diseñada. Detrás de una puerta corredera de espejo, hay un práctico armario que también proporciona mucho espacio de almacenamiento.
En la planta superior hay dos dormitorios, un cuarto de baño grande y un aseo separado. El cuarto de baño, diseñado con gusto, está equipado con una gran ducha, bañera, radiador toallero y un mueble bajo hecho a medida sobre el que se sitúan los dos lavabos. El ático alberga actualmente el dormitorio principal con un vestidor contiguo. Aquí también se ha creado un despacho.
La sala de ocio de aprox. 25 m2 en el sótano, luminosa gracias a 2 generosos pozos de luz, ofrece interesantes posibilidades de uso. En el sótano también hay un lavadero con lavadora y secadora. Justo al lado hay una despensa equipada con otro frigorífico y un congelador. La acogedora terraza con tarima de Bagkirai, el hermoso jardín y el amplio carport que puede alojar y cargar dos vehículos, completan esta atractiva propiedad. Junto a la cochera hay un cobertizo muy grande para herramientas, en el que se pueden guardar cómodamente todos los utensilios, como cortadoras de césped, etc.
El municipio de Ottobrunn, con una población de aprox. 21.000 habitantes, se encuentra en el extremo sureste de Múnich, a sólo 500 metros de los límites de la ciudad. Todas las tiendas para las necesidades diarias y las escuelas se encuentran en las inmediaciones. La propiedad ofrecida está cerca del centro de la ciudad con un moderno centro cultural y numerosas instalaciones de ocio como instalaciones deportivas, un cine y restaurantes. La nueva Escuela de Aeronáutica TUM mejora aún más la ubicación. La estación de tren está a 5 minutos a pie, y la autopista A8 proporciona un rápido acceso a los Alpes.
Equipo
Primer dormitorio con cama de matrimonio (200 x 200 cm)
segundo dormitorio con cama tipo francés
Dormitorio infantil
Armario vestidor
Cuarto de baño con ducha y bañera
servicio de invitados
servicio separado
Secadora en el sótano
TV satélite, dos televisores de pantalla plana
incluído ropa de cama y toallas
incluído plancha, tabla de planchar y aspiradora
Terraza, azotea
Jardín
Chimenea, espacio de oficina en casa, trastero, Sótano
con sistema de carga para la movilidad electrónica
Gastos incluidos en el alquiler
Extra: electricidad, gastos de calefacción, agua
Transporte público
Alrededores
Ottobrunn
Compras:
farmacia, panadería, carnicería, droguería, tienda ecológica, frutería, tienda de bebidas , floristería, tintorería, ultramarinos, mercado semanal
comida y bebida:
restaurantes, pizzerias, cafeterías, cafés de pie, jardines de cerveza, heladería, cine
Tipo del Certificado de Eficiencia Energética: Certificado de consumo
Fuentes de energía principales: gas
Categoría de eficacia energética: A
Valor del consumo de energía: 46,50 kWh/(m²*a)
