por el momento no esta disponible
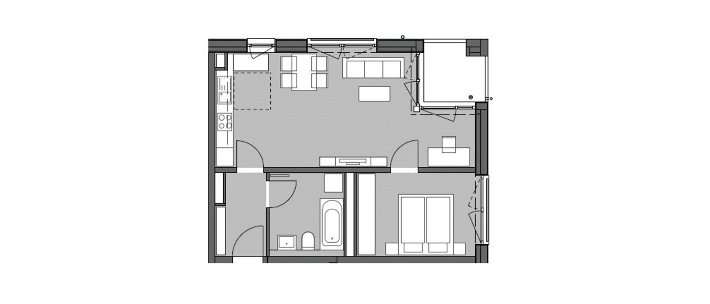
Bonito apartamento de 2 habitaciones en alquiler con plaza de aparcamiento individual.
Traducido por DeepL
Alrededores
München Am Hart
Compras:
todos los comercios para las necesidades diarias, farmacia, carnicería, floristería, tienda de bebidas
comida y bebida:
restaurantes, cafetería
