Se alquila apartamento de 2 habitaciones con jardín
- Luminoso, orientado al oeste, con vistas al amplio jardín
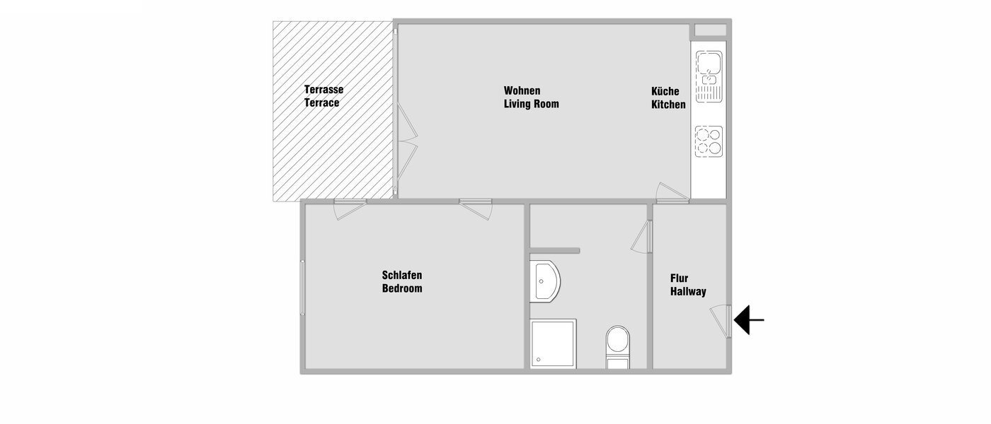
- Bonita terraza con pequeño jardín privado
- Videoportero
- Todas las tiendas a poca distancia a pie
- A solo unos 400 m / 5 minutos a pie de la estación de metro U4 Böhmerwaldplatz
Traducido por DeepL
Equipo
Piso:
Planta baja - con ascensor
Año de construcción:
2016
Habitaciones:
Salón-comedor con conjunto de sillones, sofá y muebles de comedor
Dormitorio con cama tipo francés (140 x 200 cm)
Cuarto de baño con ducha
Dormitorio con cama tipo francés (140 x 200 cm)
Cuarto de baño con ducha
Suelo:
Parquet, suelo de baldosa
Mobiliario:
Amueblada con gusto y colores claros, muy buen estado, alta calidad, exclusivos
Cocina:
Cocina-comedor, horno de cerámica, extracción, horno eléctrico, frigorífico con congelador, microondas, lavavajillas, completa con platos
Equipamiento detallado:
Lavadora en el piso
Pantalla plana
Lector DVD / Blu-ray
Cadena de sonido
incl. ropa de cama, toallas y secador de pelo
incluído plancha, tabla de planchar y aspiradora
Pantalla plana
Lector DVD / Blu-ray
Cadena de sonido
incl. ropa de cama, toallas y secador de pelo
incluído plancha, tabla de planchar y aspiradora
Internet:
WiFi
internet-tarifa plana
gastos incluidos en la renta mensual
internet-tarifa plana
gastos incluidos en la renta mensual
Especiales:
Terraza
Jardín
Sótano
Jardín
Sótano
Estacionamiento:
Garaje subterráneo (plaza individual) - más información: Estacionar y garajes
gastos incluido en la renta mensual
gastos incluido en la renta mensual
Información sobre la renta mensual:
Incluido: gastos adicionales, electricidad, gastos de calefacción, agua, Internet, garaje subterráneo (plaza individual)
Depósito:
2 meses de alquiler
Licencia para los servicios públicos de radio y televisión:
Incl. tasa de derechos de radiodifusión para poder hacer uso de los servicios públicos de radio y televisión.
Confirmación del propietario/ registro de residencia (Wohnungsgeberbestätigung) será emitida
Los recién llegados a Múnich deben registrarse en la oficina de registro en un plazo de 2 semans a partir de la fecha de la mudanza. Para ello necesita la confirmación del propietario.
descripción de la situación
buena zona, muy tranquilo, Jardín orientado al este
Transporte público
Alrededores
München Parkstadt Bogenhausen
Compras:
farmacia, panadería, tienda ecológica, tienda de bebidas , carnicería, frutería, ultramarinos
comida y bebida:
cafeterías, restaurantes, cafés de pie
Certificado energético:
Año de construcción: 2016
Tipo del Certificado de Eficiencia Energética: Certificado de demanda
Fuentes de energía principales: sistema de calefacción xcercano, sistema de calefacción a distancia, cogeneración (con fuentes de energía) renovable (s)
Categoría de eficacia energética: B
Demanda final de energía: 57,00 kWh/(m²*a)
Tipo del Certificado de Eficiencia Energética: Certificado de demanda
Fuentes de energía principales: sistema de calefacción xcercano, sistema de calefacción a distancia, cogeneración (con fuentes de energía) renovable (s)
Categoría de eficacia energética: B
Demanda final de energía: 57,00 kWh/(m²*a)
